Urban Glitch: Systems-linked architecture in a contingent world

What is the disposition of 21st-century systems-linked architecture, and how can such design act in the face of complexity and climate crisis? For the purposes of this work, systems-linked architecture is understood as design that is inextricably linked to infrastructures of energy and transportation. The studio begins with a counterfactual, which acts as a radically pragmatic grounding mechanism to situate design and catalyze architectural imagination that is neither the construction of wild utopias nor the acceptance of the existing status quo.
Urban Glitch: Systems-linked architecture in a contingent world is a Spring 2024 Harvard GSD Options Studio. See a related essay and design project output in the studio publication on issuu here.

Faculty
- Elizabeth Bowie Christoforetti, Studio Author and Instructor
- Carole Voulgaris, Advising Faculty
Studio Description
Urban Glitch was a Spring 2024 studio designed to research the pressing issue of systems-linked architecture in relation to the complex and intertwined ecological and social imperatives of our time. The studio embraced architecture as anti-autonomous, as an agent of urban change that is necessarily collaborative, connected, and contingent; as a mode of engaged cultural production that requires fresh operational positions to facilitate this agency. The studio was sponsored by AECOM, who also participated as expert planning, design, and engineering advisors across the semester.
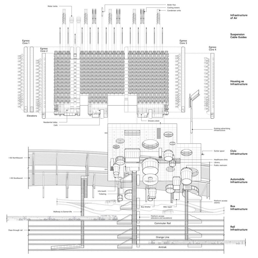
In practical terms, the studio addressed the intersection of transportation infrastructure, landscape, and civic architecture. The program was a mixed-use transit hub in Boston that accommodates public and private mobility within a paradigm of infrastructural decarbonization. The definition and disposition of infrastructure as a system of physical and social path dependencies with deeply embedded cultural and political values was explored and opened as a space for architectural agency and action.
As a way into a more radical approach to the often-codified middle scale of urban form, the studio collectively imagined an alternative present — an urban glitch — in which our architectural imagination is contingent upon altered and re-imagined outcomes to an event and cascading set of decisions in recent history that shapes the current status quo mode of operation and consumption within the built environment. The goal of this counterfactual approach to design production was to explore the spaces where current and future decisions are not fixed, where a combination of design imagination and radical pragmatism can impact the deep DNA and embedded path dependencies that shape our built world, and that generate or dissolve design’s capacity to make change at the scales of site and system.






We collaborated with artists, policymakers, and engineers, among others, to consider the following questions within the context of the design process:
What is the role of the middle scale of architecture in re-programming patterns of urban mobility for an era of decarbonization? Who owns, rents, and maintains our urban infrastructure, and what happens to urban form if variables of use and ownership change? What urban mechanics are contingent or changeable, and what conditions are inevitable factors in the shaping of 21st-century architectural form? What are the opportunities presented by an architecture of dependence in which form must act in concert with the larger conditions and constructs that drive urban change? What is the disposition and agency of a public architecture in an era of private capital? How and when does architecture have the power to act up and down the scales of the built environment?
An Urban Glitch: Counterfactual Design of an Alternative Present

The studio began with a counterfactual rather than a fixed brief:
What if the 1974 OPEC negotiations failed, developing into a longer-lasting embargo? How would the disposition of urban infrastructure have evolved differently in a condition of forced decarbonization?
Imagined as a design exercise in its own right, the Counterfactual Game operated as a collective platform to lay bare the fragile and human decisions that drive the disposition of our urban systems and the architecture that serves them. The game yielded a 2024 site context shaped by slightly different decisions: a world of path dependencies and infrastructural relationships different from our own, and rich in their potential to enable design imagination.
The outcome of a Counterfactual Game, constructed in collaboration with artist Tyler Coburn and urban technologist Siqi Zhu, set the conditions and program for our investigation of transportation infrastructure design. The single-day Counterfactual Game event enabled students to collaborate with experts in both academia and practice to consider the paradigms of causality, determinism, and contingency in our work as designers. It is a mechanism to address and construct the role of human (and non-human) agency in project design; and a method to learn from the past to construct a better future by deconstructing the variables that shape a site and its reciprocity with the urban context.

The counterfactual maps began with this prompt:
Contingencies surrounding the 1973 Oil Crisis serve as the conditions for our counterfactual game. OPEC’s oil embargo on the US and the Netherlands drove rapid and dramatic change in the ways in which fuel was consumed between 1973 and 1974. Fuel rationing, lower speed limits, and car-free mandates on mobility were suddenly on the table as ways to radically reduce dependence on cheap fossil fuels. While the impact of the crisis was lasting in its global impact, negotiations with OPEC in 1974 resulted in a lifting of the embargo. Ultimately, the impact on patterns of mobility and fuel use in the US were not dramatically altered.
But what if the 1974 negotiations with OPEC failed? Would our patterns of development and urban form in the US have changed? To what extent would our transportation infrastructure and transit-oriented development be altered from their current form? And more specifically, what would a mobility hub on our sites in Boston contain? What systems and landscapes would it serve, and in what proportions? What fixed infrastructure would it contend with? Who would own and manage such infrastructure, and to what extent would mobility hubs operate as civic spaces? And what and who would move through them?

Output
Christoforetti, Elizabeth. Urban Glitch: Systems-linked architecture in a contingent world. Harvard GSD Studio Publication, 2024.
Essays:
- Christoforetti, Elizabeth. “Systems-linked Architecture.” Urban Glitch: Systems-linked architecture in a contingent world. Harvard GSD Studio Publication, 2024: 20-23.
- Christoforetti, Elizabeth. “A Counterfactual Site: Site construction in an Alternative Present with Tyler Coburn and Siqi Zhu.” Urban Glitch: Systems-linked architecture in a contingent world. Harvard GSD Studio Publication, 2024: 25-33.
Public Event: Inundation District: A joint conversation on design, policy, and sea level rise in America’s urban districts. Organized in collaboration with Harvard Kennedy School. Harvard Graduate School of Design, Spring 2024. Cambridge, MA.
Student work. See full documentation in studio publication here.
Students
- Nehemiah Ashford-Carroll
- Gina Bernotsky
- Chandler Caserta
- Yixin Du
- Connor Gravelle
- Aria Hill
- Inmo Kang
- Ally Lammert
- Rita Rui Tin Wang
- Hannah Wong
- Lanson Xie